LES SABLES D'OLONNE - PROPRIETE 88 m2 - 3 CHAMBRES - GARAGE
- 299 000 €
- 88.34 m² de surface
- 5 pièces
- 3 chambres
- 0 salle de bain
- 1 WC
- Référence de l'annonce : 251
LES SABLES D'OLONNE - PROPRIETE 88 m2 - 3 CHAMBRES - GARAGE
Aux portes des Sables d'Olonne, dans une impasse calme, à proximité immédiate des commerces et 10 mn à vélo du centre ville et du remblai, découvrez cette propriété à fort potentiel .Vous bénéficierez en rez de jardin d'un garage de 77 m² avec accès intérieur et extérieur à la maison mais aussi d' un bel extérieur à personnaliser pour profiter de son ensoleillement et de son calme...
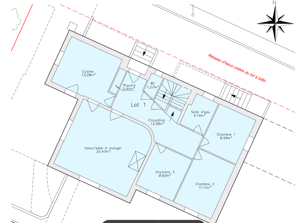
La partie habitable est constituée d'une belle pièce de vie avec cheminée, une cuisine indépendante, trois belles chambres, une salle de bain et un WC indépendant.
Une opportunité à ne pas rater !!!
Réservez vite votre visite !!!
Agence VIVRE AUX SABLES IMMOBILIER
2 Promenade Georges Godet
85100 LES SABLES D'OLONNE (4.91 % honoraires TTC à la charge de l'acquéreur.)
Copropriété de 5 lots - dont 3 lots habitation.(Pas de procédure en cours).
Date du DPE : 13/12/2023
Plus d'informations
- Type de chauffage Individuel
- Mode de chauffageElectrique
- Mécanisme de chauffage Radiateur
- Cuisine IndependanteAmenageeEquipee
Entrée - Dégagement
Surface14.49m²
Niveau0Séjour - Salle à manger
Surface25.47m²
Niveau0Cuisine
Surface13.28m²
Niveau0Chambre 1
Surface8.99m²
Niveau0Chambre 2
Surface11.11m²
Niveau0Chambre 3
Surface8.6m²
Niveau0Salle d'eau
Surface4.14m²
Niveau0W.C.
Surface1.27m²
Niveau0Garage
Surface77.71m²
Niveau0




